間取りやデザイン、設備などを自由に選ぶことができる注文住宅。特に間取りは、住み始めてからの生活に大きく関わるものですから、慎重に決めたいという方も多いでしょう。
間取りを決める際には、実際に建てられている家を参考にするのがおすすめ。特に家族構成が似ているお宅を参考にすると、自然とどんな間取りにすれば良いかイメージが湧いてくると思います。
今回は、2,000万円以内で建てられた注文住宅の間取り例をご紹介。それぞれの家のポイントも解説しているため、ぜひ参考にしてみてください。
この記事がおすすめできる人
- 予算2,000万円で家を建てたい人
- 予算2,000万円でどんな家が建てられるのか知りたい人
- 間取りに悩んでいる人
- 間取りの実例を参考にしたい人
- ローコスト住宅に興味を持っている人
なお以下の記事でも「注文住宅」について詳しく解説しています。ぜひ、本記事と合わせてご覧ください!
・ 30人の失敗談から学ぶ!マイホーム造りで後悔しないためのポイント
・ ブログから読み解く!みんなが注文住宅づくりで悩む5つのポイント
・ ハウスメーカーの選び方は?依頼するメリットや4つの選定ポイント
〜2,000万円の注文住宅の間取り例
まずは2,000万円以内で建てられた注文住宅の間取り例を12軒分ご紹介します。
3LDK/1,589万円

引用:和風の落ち着きを重視した続き間のある平屋住宅/設計プラン|株式会社 今井建設|浜松市・工務店
外観は和風モダンの平屋の家です。26.5坪の広さですが、天井が高いため開放感があります。
間取りは、16畳のLDK、6畳の洋室、6畳・8畳の和室の3LDK。2つの和室は続き間となっているため、ふすまを開いて広々と使ったり、独立した2つの部屋として使うこともできます。
それぞれの部屋には大きな掃き出し窓を設置し、日当たりを確保しています。
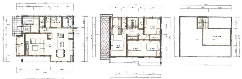
2LDK/1,664万円

引用:子ども達の帰省にも対応した、自然素材の家/設計プラン|株式会社 今井建設|浜松市・工務店
自然素材を生かした家。普段はのんびりご夫婦2人で、お子様やお孫様の帰省にも対応できる間取りとなっています。
間取りは、LDKと洋室2つの2LDKです。
1階は約22畳のリビングとキッチン、水回りのみ。リビングがとても広々としているので、家族が集まる時にも十分対応できそうです。
また、2階にはご夫婦の寝室のほかに洋室が設けられており、来客用の寝室にもぴったり。ウォークインクローゼットや小屋裏収納など、収納スペースも充実しています。
3LDK/1,876万円

引用:天然無垢の素材を活かした安心で快適な暮らし/設計プラン|株式会社 今井建設|浜松市・工務店
冬は暖かく、夏は涼しく、快適に暮らせるよう天然無垢の素材にこだわった家。天然御影石のアイランドキッチンや、木材を使った収納など、細部にまでこだわっています。
間取りは、1階にLDKと和室、2階に寝室と和室という3LDK。玄関やバルコニーのスペースを広々ととっているところもポイントです。
寝室横には、収納スペースたっぷりなウォークインクローゼットもあります。
3LDK/1,521万円

引用:必要な空間をまとめた、便利で快適なコンパクト住宅。/設計プラン|株式会社 今井建設|浜松市・工務店ト
こだわったのは無駄なくコンパクトな設計。天然木のパイン材を使用しており、木の香りが部屋全体に広がる暖かみのある家です。
間取りは、1階にLDK、2階に3つの寝室がある3LDK。LDKは広々とスペースを取り、2階には家族それぞれの個室が用意されています。
玄関脇には、車2台を停めておくことができる駐車スペースがあります。
4LDK/1,633万円

引用:住む人がいつまでも安らぎ、家族の幸せが積み重さなる家/設計プラン|株式会社 今井建設|浜松市・工務店
家族の幸せが積み重なっていくことを願って造られたこちらの家。
各居室の床には、優しい肌触りの無垢材が使われています。無垢材は保温性や断熱性が高いところも魅力的です。
間取りは、1階にLDKと和室、2階に3つの寝室がある4LDK。1階の和室はリビングと繋がっており、和の落ち着きを感じられる造りとなっています。
また、2階にある両親の寝室にはウォークインクローゼットと家事室も完備しています。
2LDK/1,621万円

引用:住む人がいつまでも安らぎ、家族の幸せが積み重さなる家/設計プラン|株式会社 今井建設|浜松市・工務店
天然の無垢材を使用した、保温性・断熱性にも優れた家。シンプルな2階建てで、2台分の駐車スペースもしっかり確保されています。
間取りは、1階にLDK、2階に寝室と子供部屋の2LDK。2階の子供部屋は仕切りを使って2つに分けることができるようになっています。
また寝室横には3畳の書斎スペースがあり、趣味の時間をのんびり楽しめる造りとなっています。
3LDK/1,906万円

引用:忙しいママの動線を考慮した、すっきりとした家/設計プラン|株式会社 今井建設|浜松市・工務店
アイランドキッチンを暮らしの中心にした家。家事の動線を考え、家族のつながりを大切にした3階建ての家です。
1階にはLDK、2階には3部屋の寝室、3階には小屋裏収納がある3LDKの間取り。
LDKの中心となっているアイランドキッチン近くには、お風呂、洗面脱衣所、トイレなどがひとまとまりになっているため、家事の動線もスムーズです。
4LDK/1,674万円

引用:ナチュラルライフを楽しむ演出が随所にある家/設計プラン|株式会社 今井建設|浜松市・工務店
広々とした玄関が特徴の家。自然素材を普段に使い、癒しの空間を演出しています。
間取りは、1階にLDK、2階に寝室2部屋と子供部屋2部屋がある4LDK。子供部屋は仕切りを外して大きな1部屋としても使えるようになっています。
1階の玄関はスペースを広々と使い、収納もたっぷり。LDKには、ピアノのスペースも確保されています。
3LDK/1,699万円

引用:開放感溢れるリビングを住まいの中心にした家。/設計プラン|株式会社 今井建設|浜松市・工務店
開放感あふれるリビングが家の中心にある家。アイランドキッチンを中心に、勉強机にもなるカウンターや、食品庫などが配置されています。
間取りは、1階にLDKと和室、2階に寝室と子供部屋がある3LDK。子供部屋は仕切りを使って2人で使えるようになっています。
階段を上がったところには、広々としたファミリースペースが。最近は思い出を飾ったり、家族がくつろいだりするためのファミリースペースを設ける方も増えています。
2LDK/1,905万円

引用:ガレージが部屋の一部になった家/設計プラン|株式会社 今井建設|浜松市・工務店
注目は、家と一体化しているガレージ。使い勝手の良さにこだわり、棚や洗面台なども設置されています。
間取りは、1階にLDK、2階に寝室と子供部屋がある2LDK。キッチンの横には、ちょっとした畳コーナーもあり、和の雰囲気を楽しめる空間となっています。
また2階のホールは、雨の日に洗濯物を部屋干しすることを考えてスペースを広めに確保しています。
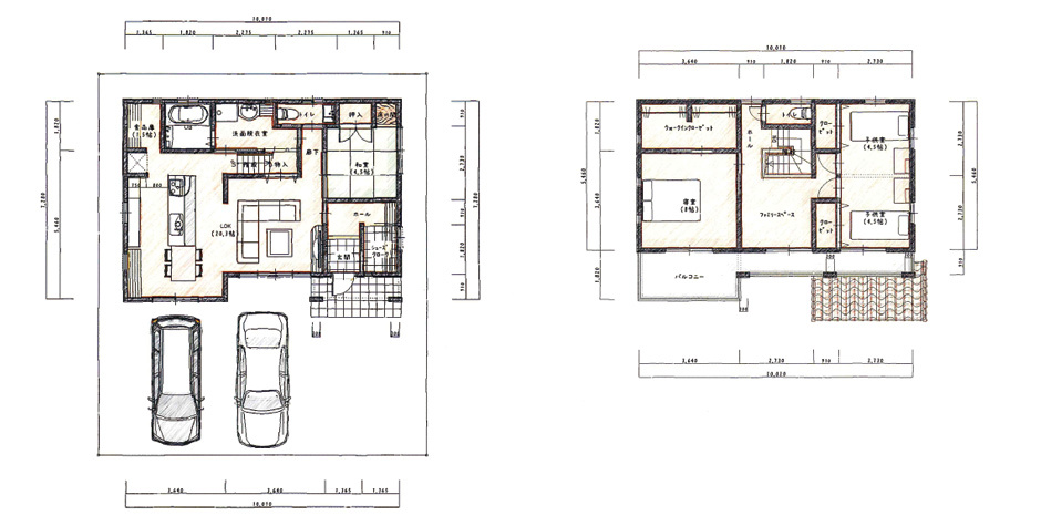
4LDK/1,992万円

引用:開放感溢れるリビングを住まいの中心にした家/設計プラン|株式会社 今井建設|浜松市・工務店
広々とした開放感溢れるリビングが特徴の家。キッチン近くには食品庫も用意されており、食材の収納スペースもばっちりです。
間取りは、1階にLDKと和室、2階に寝室、子供部屋、ファミリースペースがある4LDK。両親の寝室には、ウォークインクローゼットが2つ設置されています。
ファミリースペースは5.5畳と広め。バルコニーとも繋がっているため、光が差し込み、家族がのんびり過ごすのにぴったりの空間です。
3LDK/1,776万円

引用:ラセン階段をポイントとしたシンプルな空間構成/設計プラン|株式会社 今井建設|浜松市・工務店ト
螺旋階段が特徴的な家。余分なものはとことん排除したシンプルな造りの家です。
間取りは、1階にLDK、2階に寝室と2つの子供部屋がある3LDK。片方の子供部屋は2つに仕切って使えるようになっています。
2階へと続く螺旋階段はLDKにあるため、必ずリビングを通って2階に上がることになります。
階段部分は吹き抜けなので、いつでも家族の存在を感じて過ごすことができます。
注文住宅のコストを抑えるための間取りの工夫

注文住宅を建てる際には、間取りを工夫することでコストを抑えることが可能です。
施工面積を小さくする
言わずもがなですが、施工面積を減らせばその分コストを下げることが可能です。
コストダウンを考えるのであれば部屋数を必要最低限に絞って、できるだけ床面積を減らすようにしましょう。
しかし、完成した図面をそのまま縮小するだけでは、構造やデザインのバランスが崩れてしまうことにもなりかねません。
また大幅に図面を修正するには手間もかかってしまうため、どれくらいの広さの家を建てるかは、計画段階でしっかりと決めておくことが大切です。
建物の形をシンプルに
最もコストがかからないのが、シンプルな箱型の家です。同じ広さの家でも、建物の形が複雑になることで外周の面積が増え、それによって下地材や外壁材などの材料費が加算されてしまいます。
さらに角の処理にはより手間がかかるため、工事費用も上乗せされることになります。
箱型の家は見た目にはとてもシンプルですが、形がシンプルであればあるほど、建物の構造が強くなるというメリットもあります。
2階建てなら総2階がおすすめ
ひとくちに「2階建て」と言っても、2つの種類があることはご存知でしょうか。
ひとつは1階と2階の床面積がほとんど同じ「総2階建て」、もうひとつが1階の床面積よりも2階の床面積の方が小さい「部分2階建て」です。
部分2階建ては、総2階建てに比べて基礎工事やコーナー処理などの作業が増えてしまうため、作業ひや工事費が高くなってしまいがち。
そのため、2つの延床面積が同じ場合、総2階建ての方がコストは安く済みます。
2階建ての家を低コストで建てるなら、総2階建てがおすすめです。
部屋数を少なくする
最近は小さな部屋をいくつも作るよりも、オープンな間取りを選ぶ方が増えています。
部屋数が多いほど、間仕切りや壁を作るための材料費・人件費がかかるだけでなく、照明や建具などもそれぞれの部屋に必要となりコストがかかります。
例えば、大きな子供部屋をつくり成長に合わせてカーテンで仕切ることができるようにしたり、リビングの一角に和室風の畳コーナーを設けたりなど、工夫は様々。
特にこれからお子様が巣立っていくという方は、使い道のない無駄な部屋が残ってしまうことがないよう、部屋の数を検討してみてください。
階段を箱階段に
箱階段とは、住宅の階段の中で最も一般的なタイプの階段のタイプです。
壁材はほかの壁と同じようにクロスを貼るだけなので、材料費や人件費を抑えることができます。
反対に、吹き抜け階段や螺旋階段などの特殊なタイプや、手すりに鉄などの素材を使ったりするとコストは跳ね上がります。
水回りは一箇所にまとめる
キッチン、洗面所、浴室、トイレなどの水回り。これらはなるべく近い場所にまとめて間取りを組むことで、コストダウンが実現できます。
その理由は、給排水管などの設備が節約できるから。さらに給湯器との距離も近づけておくことで、ガス代などのコストも抑えることができ、実際住み始めてからもお得です。
階ごとにトイレを設ける場合も、位置が上下で重なるようにしておくと費用を抑えることが可能です。
ウォークインクローゼットを活用
これまでは各部屋ごとにクローゼットなどの収納スペースが付いているのが一般的でしたが、最近ではこれをウォークインクローゼットにまとめてしまう方も増えています。
クローゼットをいくつもつくると、それぞれに扉や棚、パイプハンガーなどが必要。しかし一箇所にまとめることで、その費用を削減できるというメリットがあります。
クローゼットだけでなく、玄関やキッチンなども、大きなシューズクローゼットやパントリーをつくることで、収納にかかるコストを大幅カットすることができます。
収納場所の数を減らすことで、家事がしやすくなったり、整理整頓の手間が少なくて済むというところも嬉しいポイントです。
注文住宅の間取り決めで考えておきたいポイント

間取りを考える際に、気をつけたいポイントについて説明します。
日当たり
日当たりの良さは、心地よい暮らしができるかどうかに大きく関わる部分ですが、間取りを考える際には意外と忘れてしまいがちなポイントでもあります。
中には、日当たりは工務店や住宅会社が当たり前に考慮してくれているものだと思っていたのに、実際住んでみたら全く日が当たらなかったと後悔している方も。
一般的に、リビングなど家族が長い時間過ごす部屋は南東に、トイレや浴槽などの水回りは西日が差し込む場所や日当たりが悪い場所に配置します。
風通し
日当たりと同じく、風通しの良さも重要なポイント。風を上手く取り入れられることで、室内を快適に保つことができます。
大切なのは、風の通り道を作ってあげること。対角線上に窓を配置すると、部屋の中をスムーズに風が流れていきます。
また、高い位置の窓は温まった空気を逃し、低い位置の窓が冷たい空気を取り入れることができるため、窓の高さも考慮できると良いですね。
生活動線
いくら気に入ったデザインの家を作っても、生活動線に配慮した間取りになっていないと、生活をするのがとてもストレスになってしまいます。
まずは家族全員の1日の流れを考えて、それぞれの情報を整理してみましょう。
また、時が経つにつれてライフスタイルは大きく変わります。そのため、今現在のことはもちろん、5年後、10年後にはどのような生活を送っているかを考える必要があります。
家具や家電の配置
間取りと一緒に必ず考えておきたいのが家電や家具の配置です。
設計時は間取りのことで頭がいっぱいになり、つい疎かになってしまいますが、実際住み始めてから失敗したと後悔する方が多いポイントでもあります。
間取りを考える際には、その時点でどこにどんな家具を置くかを考えておくのがおすすめ。可能であれば、置きたい家具の寸法なども想定しておくと失敗が少なくて済みます。
外構計画
最後に、庭やアプローチなどの外構について。現在車を所有していないご家庭でも、これから所有する予定がある場合には駐車スペースを確保しておかなければいけません。
また、外に手洗い場などを設置する場合、配管が必要となります。住宅完成後に設置することも可能ですが、間取り決めの時点で要望を出しておくとスムーズです。
まとめ
記事の内容まとめ
- 2,000万円以内で建てられる家の間取りを紹介
- 間取りを工夫することでコストを抑えることができる
- 間取りを決めるには、日当たり・風通し・生活動線・家具や家電の配置・外構も重要
注文住宅の相場は、2,000万円〜3,000万円程度と言われています。
細部までこだわればこだわるほど、その分費用はかかりますが、逆に必要のないものをしっかり見極めれば予算内でこだわりをふんだんに生かした理想の家を建てることも可能です。
何にお金をかけてどこを節約するか、その判断がとても重要となります。
プレゼントキャンペーン
今なら相談・見学予約で「ギフト券5,000円分×相談見学社数分」、
資料請求で注文住宅で失敗しない成功マニュアル3つをe-booksでプレゼント!
あなたの夢を叶える
工務店・ハウスメーカーを検索しましょう。