坪数別の間取り成功例12選!失敗・後悔しないために知っておきたいポイントも解説
注文住宅を建てる際に、頭を悩ませるのが家の間取りです。欲しい部屋数やそれぞれの部屋の広さを決めるのはそれほど大変なことではありませんが、そこで快適に暮らすためには、動線なども考慮して考えなければいけません。
そこでまずやっておきたいのが、間取りの成功例をチェックするということ。あれこれと一人で頭を悩ませるよりも、似たような広さの家の間取りをチェックすればイメージが湧きやすくなります。
今回は間取りの成功例のほか、失敗例や失敗しないために気をつけたいことなどをまとめました。これから家づくりに取り組むという方は、ぜひ参考にしてみてください。
この記事がおすすめできる人
- 坪数別の間取りの成功例がみたい人
- 注文住宅の間取りで悩んでいる人
- 注文住宅を建てようと計画中の人
- 間取りの失敗例が見たい人
- 間取り作りで失敗しないポイントが知りたい人
【坪数別】注文住宅の間取りの成功例

20〜30坪、30〜40坪、40〜50坪、50坪〜という4つの坪数別に、注文住宅の間取りの成功例をご紹介します。これから建てる住宅の広さに近い間取りを参考にしてみてください。
20〜30坪の間取り成功例
一般的な住宅よりも少し小さめの20〜30坪の家。間取りの工夫をチェックしてみましょう。
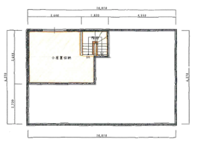
27.0坪(3LDK)



出典:【SUUMO】 【京都府/1000万円台/約30坪/狭小】京都府で約30坪の狭小地で防犯面にも優れた家の実例(間取り図有) - 大栄ホーム の建築実例詳細 | 注文住宅
長く飽きのこない家を実現したこちらの間取り。1階には床暖房を完備した広々としたリビングのほか、家事がしやすいよう洗面所、浴室、トイレなどの水回りがまとめられています。
2階には、子供部屋と寝室。子供部屋は将来2部屋に分けて使えるように、間仕切り用の梁が設置されています。将来のことを考えた設計になっているため、家族構成が変わっても長く住み続けることが可能です。
また小屋裏収納は、季節外れの洋服や家電などをまとめてしまっておくことができるので便利ですね。
28.7坪(3LDK)


出典:【SUUMO】 【間取りあり】「小さく建てて、のびのび暮らす」をコンセプトに、外からの視線を遮り、屋内に光を取込む家 - あんじゅホーム の建築実例詳細 | 注文住宅
トイレ、洗面所、浴室、キッチンを近くに集めて、家事がしやすいよう動線が工夫されています。キッチンは回遊できるようになっているので、よりスムーズに動くことができるでしょう。
リビング・ダイニングは吹き抜けにすることで、開放感たっぷりです。
2階には、主寝室と2つの子供部屋。主寝室にはウォークインクローゼット、子供部屋にはそれぞれクローゼットを設けているため、コンパクトな部屋でも物が溢れることなく快適に過ごすことができます。
29.9坪(3LDK)


出典:【SUUMO】 【滋賀/29坪/狭小/間取り有/2000万円台】敷地の不利な条件を克服して建築。明るく、開放的な3LDK - デザオ建設 の建築実例詳細 | 注文住宅
設計士をされている施主が、自分で設計した家に住みたいという願いのもと作った間取りです。
日当たりを確保するためにLDKを2階に設置。太陽光をたっぷり確保できるだけでなく、外からの視線も遮ることが可能です。
キッチンは対面式になっているため、ダイニングやリビングにいる家族とコミュニケーションを取りながら家事をすることができます。
各階にトイレを設けているので、階段を昇り降りする手間もなく、朝の忙しい時間帯にも便利です。
30〜40坪の間取り成功例
住宅の坪数として最も一般的なのが30坪〜40坪の家です。3〜4人家族で暮らしやすい間取りの工夫をチェックしてみましょう。
30.6坪(3LDK)

出典:【SUUMO】 【1000万円台/30坪/狭小/家事動線/間取り図】木の温もりに包まれて暮らす、フレンチカントリーの家 - ハウスアップ の建築実例詳細 | 注文住宅
生活の中心となる1階には、LDKとキッチン、和室があります。和室は小上がりにすることで、使い勝手が良く、家族のくつろぎスペースになっています。
予算に合わせて2階の床面積を抑えるため、大きな吹き抜けを作ったのだそう。それによって1階のLDKには太陽光をたっぷり取り入れることができます。
2つの洋室にはクローゼット、寝室にはウォークインクローゼットを完備。広々としたバルコニーもこだわりのポイントです。
38.01坪(4LDK)


出典:和室と書斎のある家/設計プラン|株式会社 今井建設|浜松市・工務店
家族で暮らす2階建ての家。1階のリビング横には、5畳ほどの和室があり、書き物ができる棚が備え付けてあります。
アイランドキッチンでは、家族で食事の準備をするのにも便利。LDKは19.6畳ととても広々としているため、ゆったりと過ごすことができそうです。
2階には、2つの子供部屋、寝室のほか、4.5畳の書斎も。それぞれの部屋にクローゼットを設置し、収納スペースをたっぷり確保しています。
39.01坪(2LDK)



出典:キッチンとリビングを分けた家/設計プラン|株式会社 今井建設|浜松市・工務店
キッチンとリビングの空間をしっかり分けることによって、リビングでくつろぐときに、生活感を感じさせない設計になっています。
トイレ、浴室、洗面脱衣所は1ヶ所にまとめられているため、掃除などの家事もしやすいですね。
また、玄関スペースには、広々としたシューズクロークを完備。家族の靴やお出かけアイテムなどを片付けておくことができるので、急な来客の際にも安心です。
2階には、2つの子供部屋と寝室、2畳ほどの書斎があります。
40〜50坪の間取り成功例
一般的な住宅よりもやや広めの40〜50坪の家。大きな収納スペースや趣味の部屋を設けるなど、工夫して楽しむことができそうです。
40.1坪(4LDK)


出典:【SUUMO】 「弥富市×長期優良住宅※間取図あり」安心性能、デザイン、素材使い。展示場で見た“素敵”を集めて - アールギャラリー 栄ショールームの建築実例詳細 | 注文住宅
土地の形を生かして、片側の壁一面にワイド窓を設置しているため、昼間は太陽光が射し込み電気をつけなくても良いほど明るいのが特徴です。
キッチンと洗面室がつながっているので、家事動線もばっちり。この動線は展示場のアイデアをそのまま取り入れたのだそうです。
書斎を設けるにはスペースが足りなかったため、収納スペースの一角を使って書斎コーナーを設けています。デッドスペースを活かすことで、限られたスペースでも施主の満足できる間取りとなっています。
44.4坪(5LDK)



出典:【SUUMO】 【間取り有/2950万円/吹抜け】ほどよい距離感で大家族が暮らす家、将来も考えられた3階建ての3世帯住宅 - SARA HOME桜建築事務所 の建築実例詳細 | 注文住宅
1階と2階・3階で居住スペースを分けた二世帯住宅。家族が集まりやすい広々としたリビングにこだわって間取りづくりを進めたそうです。
1階と2階の間取りはほぼ同じですが、2階には寝室の代わりにパントリーやアウトサイドリビングを設置。3階には、子供部屋と夫婦の寝室、ウォークインクローゼットが完備されています。
大きな吹き抜けのあるリビングや、掃除がしやすいよう1ヶ所にまとめた水回りなど、細部までこだわり抜いた間取りです。
47.60坪(2LDK+3LDK)


出典:プライベート空間を大切にした、住み心地のいい家/設計プラン|株式会社 今井建設|浜松市・工務店
こちらも、1階と2階で居住スペースを分けた二世帯住宅です。1階・2階ともにほぼ同じ間取りにすることで、費用を抑えることが可能。1階のご両親のスペースにも2ヶ所寝室を設けています。
2階には、キッチン、LDKのほか、2つの子供部屋と夫婦の寝室を完備。夫婦の寝室は8畳で、ウォークインクローゼットが設置されています。
バルコニーからたっぷり日差しが差し込むように設計されたLDKも魅力的です。
50坪〜の間取り成功例
二世帯で暮らすのにも十分な50坪以上の広さの家。二世帯住宅をお考えの方は、ぜひ間取りを参考にしてみてください。
52.10坪(7LDK)


出典:大家族で住める間取りの家/設計プラン|株式会社 今井建設|浜松市・工務店
二世帯で住むことができるほど広々としていますが、居住スペースはあえて分けず、キッチンやLDKは一つにまとめられているため、家族全員で賑やかに暮らすことができる間取りです。
2階の各部屋にもクローゼットは完備されていますが、1階にも大きなウォークインクローゼットがあるため、必要な荷物をまとめて置いておくことができます。
2階には、主寝のほか5つの洋室を設置。大家族でもそれぞれのスペースを確保して快適に暮らすことができそうです。
56.36坪(5LDK)


出典:ちょっとした和空間が心地よい二世帯住宅/設計プラン|株式会社 今井建設|浜松市・工務店
1階、2階で居住スペースを分けた二世帯住宅ですが、バスルームのみ一緒に使用することができる間取りです。
ダイニングとリビングの間には、目線を遮る間仕切り扉を設置。来客の際ダイニングやキッチンの生活感を隠すことができます。
また、リビングに設けた畳コーナーはバリアフリーで、家族がくつろぐのにぴったりなことはもちろん、心地よい落ち着きを演出してくれています。
2階には家族それぞれの寝室のほか、10畳ほどのファミリースペースが設けられています。
64.3坪(4LDK)


出典:【SUUMO】 【3381万円】愛車をいつでも眺められるビルトインガレージハウス。防犯対策もしっかり - マツシタホーム の建築実例詳細 | 注文住宅
もともとビルトインガレージのある家に憧れていたという施主。1階にはガレージと約23畳のLDKを設けています。
LDKの大きなフィックス窓からは、いつでも愛車を眺めることが可能。ビルトインガレージを囲むような形で、収納スペースたっぷりの廊下が配置されています。
リビングの一角は吹き抜けになっているため、開放感もたっぷり。アイランドキッチンからは1階のほとんどを見渡すことができます。
キッチンの後ろには洗面所・浴室・収納スペースと続いているため家事がしやすいのも特徴です。
どんなことで後悔してる?よくある失敗例5選

間取りの成功例はもちろん参考になりますが、失敗例もあわせてチェックしておくのがおすすめです。ここではよくある失敗例5つをご紹介します。
生活動線が悪い
家族が生活する上で意識しなければいけないのが生活動線。朝起きてから寝るまで、それぞれがどんな動きをするのか、その移動の流れを生活動線といいます。
生活動線がスムーズでないということは、暮らしにくいということ。家族それぞれの動きを思い返して間取りを考えるのがおすすめです。
また、掃除や洗濯、料理など普段の家事をスムーズに行うためには、家事動線も意識する必要があります。水回りを1ヶ所にまとめるなど、どうしたら毎日の家事が少しでも楽にできるかを考えてみましょう。
部屋の数が足りない、または多い
一度家を建てたら、ほとんどの場合30年・40年と長い間その家に住み続けることになります。
しかし時間が流れるにつれて、必要な部屋の数や広さは変わっていくもの。そのため、家の間取りを考える際には、何十年先も見越して家族の変化に対応できるようにしなければいけません。
最近は引き戸の間仕切りなどを使って、部屋の広さや家族を調節できるように設計する方も増えています。
また、部屋を分けて子供部屋を増やす、2つの部屋にを1つにまとめて趣味の部屋にするなど、簡単なリフォームで変化させることができるように工夫しておくのも良いですね。
収納が少ない
いざ間取りを決めようとすると、リビングや寝室、水回りなど生活のために必要なスペースに意識がいってしまいがち。快適に暮らすために必要な収納スペースのことを後回しにしてしまう方も多いものです。
収納スペースを確保するよりも各部屋を広くしようと考えるのは実は危険。収納スペースが少なすぎると部屋に物が溢れて、部屋が散らかってしまう原因になります。
収納スペースは、広さはもちろん、設置する位置も重要です。どこに何を収納したいかをあらかじめ予測して、適切な位置に適切な大きさのスペースを確保するようにしましょう。
コンセントの数が足りない、位置が悪い
テレビ、掃除機、空気清浄機、電子レンジなど、生活をする上で私たちはたくさんの家電を使用しています。そのためコンセントの使い勝手が悪いと、生活がしづらいと感じる要因になってしまいます。
コンセントで失敗しないためには、どこでどんな家電を使うかを考えて場所や数を決めていくのがおすすめ。また、朝起きた時、夜寝る時、出かける時、掃除をする時などの動線を想定して、スムーズに使える位置にあるかどうかを考えてみましょう。
空調関連の失敗
暑い夏や寒い冬、快適に過ごすために必要な空調。しかし、リビングが広すぎてクーラーが効かない、吹き抜けにしたせいで部屋がなかなか暖まらないなどの失敗がよくあります。
特に広々としたリビングを作りたいと考えている方は要注意。間仕切りを設置して必要に応じて空間を仕切ることができるようにする、床暖房を取り入れるなどの工夫が必要です。
また、窓の位置や大きさによって風通しの良し悪しが決まります。風通しが悪い家は、室内に空気がこもりカビなどの原因にもなってしまうため、窓の配置も重要なポイントです。
注文住宅の間取りで失敗しないためのポイント

間取りづくりで失敗しないためには、以下の3つのポイントに注意するよう心がけてみてください。
実際の暮らしをしっかりイメージする
家を建てようと決めたら、インターネットや住宅雑誌などで情報を集めて、こんな家にしたい、あんな家にしたいと夢を膨らませる方が多いと思います。
しかし、最も大切なのは家族がそこで快適に暮らすことができるかということ。もちろん情報を集めて良いと思う部分を真似することは必要ですが、家族それぞれ住みやすい家の形は異なります。
そのため、新しい家でどんな生活が送りたいか、家族それぞれがどう暮らすかをしっかりイメージすることが大切です。
デザイン性ばかりを優先しない
せっかく家を建てるのなら、おしゃれな家にしたいと思うもの。しかしデザイン性を優先しすぎてしまうと、快適性や機能性が失われてしまい、住み心地の悪い家になってしまう危険性があります。
見た目の良さも重要ですが、今の生活はもちろん、将来の生活も見越して間取りを考えなければいけません。
見た目の良さと住み心地の良さ、この2つのバランスを上手く保つことができるような工夫が必要です。
打ち合わせを疎かにしない
間取りを決める際は、施工会社と何度も打ち合わせを行うことになります。特に細部までこだわった家にしたいという方は、その回数や時間も増えていくものです。
しかしそこで妥協してしまうと「こんなはずじゃなかった…」と後悔することにもなりかねません。そうならないためにも、多少面倒だと感じてしまっても、納得できるまでとことんこだわることをおすすめします。
プロの意見を取り入れることは大切ですが、任せっきりではなかなか話が進まないこともあります。どんなイメージにしたいのかなど、事前にしっかり準備をして積極的に打ち合わせに参加すれば、スムーズに進めることが可能。実際に家を建てたことがある経験者に話を聞くのも良いですね。
まとめ
- 最も一般的な住宅の広さは30〜40坪。
- 間取りを決める際には、実際の暮らし(生活動線や家事動線)をイメージすることが重要。
- 打ち合わせを進めるうちに面倒に感じてしまうこともあるが、そこで気を抜いてしまうとあとで後悔することに。
- 家族で相談することはもちろん、実際に家を建てたことのある方や設計士などプロの意見を取り入れるのがおすすめ。
プレゼントキャンペーン
今なら相談・見学予約で「ギフト券5,000円分×相談見学社数分」、
資料請求で注文住宅で失敗しない成功マニュアル3つをe-booksでプレゼント!
あなたの夢を叶える
工務店・ハウスメーカーを検索しましょう。