
スウェーデンハウス
函館モデルハウス(北海道)「Swedish grace」をコンセプトに掲げた人と自然にやさしい住まい。
-
大屋根タイプの「Alm(アルム)」
-
感性豊かな子どもはもちろん、大人の心もくすぐる、木の質感たっぷりのロフトをしつらえました。
-
白とパイン材を基調としたナチュラルなカラーリングが陽射しを美しく空間に取り込むリビングルーム。
-
薪ストーブの炎をに照らされ、アルネ・ヤコブセンのエッグチェアに身をゆだねれば、ワンランク上のリラクゼーションが味わえます。
-
薪ストーブのある暮らし。エントランスではインテリアとしても美しく積み上げられた薪が家族を暖かく迎えてくれます。
-
スウェーデン・デューロ社のクロスとパイン材が美しいコーディネートのパウダールーム。
- こだわり
- アフターサービス充実
- バリアフリー
- 子育て向き
- 地震に強い
- 省エネ・エコ
- 高気密・高断熱
- 「長期優良住宅」認定
- モダン
- ナチュラル
- ペットと暮らす
- 防音
- 輸入住宅
- 大きなキッチン
- 広いリビング
- 木造
事例のポイント①
「良いものを長く愛して使う」という北欧の文化が息づく家。高い耐久性、大地震にも耐え抜く堅牢さ、飽きのこない普遍的なデザイン、高い住宅性能に支えられた快適性などがあわさった、長く住み続けたくなる住まいです。
事例のポイント②
標準仕様の「木製サッシ3層ガラス窓」に象徴される、高気密・高断熱の住まいです。お引渡し前に気密・断熱性能を計測してオーナー様にお知らせ。確かな性能に裏付けられた心地よい暮らしを提供します。
担当者からのアピールポイント
控えめな美しさと機能的なシンプルさ。過度なデザインにとらわれることなく、実用性の中にある美しさと木のぬくもりがあふれる快適な空間デザイン。高い気密性・断熱性が叶える“生活の移り変わりと共に建物に年輪が刻まれるような家づくり”をご提案します。
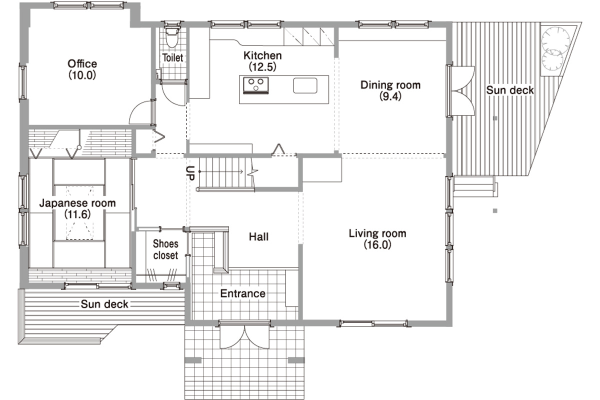
間取り
1F
2F
この会社の施工可能エリア
あなたのお家の建築希望地が施工可能エリアの場合、この会社にカタログ請求もしくは相談見学することができます。
北海道
東北
関東
-
埼玉県の施工対応エリア
※エリアをクリックするとカタログ請求もしくは相談見学申込ページに移動します
-
神奈川県の施工対応エリア
※エリアをクリックするとカタログ請求もしくは相談見学申込ページに移動します
中部
-
愛知県の施工対応エリア
※エリアをクリックするとカタログ請求もしくは相談見学申込ページに移動します
関西
-
大阪府の施工対応エリア
※エリアをクリックするとカタログ請求もしくは相談見学申込ページに移動します
- 大阪市都島区
- 大阪市福島区
- 大阪市此花区
- 大阪市西区
- 大阪市港区
- 大阪市大正区
- 大阪市天王寺区
- 大阪市浪速区
- 大阪市西淀川区
- 大阪市東淀川区
- 大阪市東成区
- 大阪市生野区
- 大阪市旭区
- 大阪市城東区
- 大阪市阿倍野区
- 大阪市住吉区
- 大阪市東住吉区
- 大阪市西成区
- 大阪市淀川区
- 大阪市鶴見区
- 大阪市住之江区
- 大阪市平野区
- 大阪市北区
- 大阪市中央区
- 堺市堺区
- 堺市中区
- 堺市東区
- 堺市西区
- 堺市南区
- 堺市北区
- 堺市美原区
- 岸和田市
- 豊中市
- 池田市
- 吹田市
- 泉大津市
- 高槻市
- 貝塚市
- 守口市
- 枚方市
- 茨木市
- 八尾市
- 泉佐野市
- 富田林市
- 寝屋川市
- 河内長野市
- 松原市
- 大東市
- 和泉市
- 箕面市
- 柏原市
- 羽曳野市
- 門真市
- 摂津市
- 高石市
- 藤井寺市
- 東大阪市
- 泉南市
- 四條畷市
- 交野市
- 大阪狭山市
- 阪南市
- 南河内郡太子町
- 南河内郡河南町
- 南河内郡千早赤阪村
中国
九州
あなたの夢を叶える
工務店・ハウスメーカーを検索しましょう。